K1型小壳多用户说明书
一、产品概述:
该表是我公司自主研发的一款新型预付费电能表,采用模块化结构,结构合理,功能完善。以双单片机设计,实现用户用电参数采集,电能计算、处理、存储及用户用电控制,为用户提供了多种功能选择。
该表可通过RS485接口实现联网功能,并可随时通过电脑自动抄收各户的用电信息,便于管理部门及时统计各月的用电量,是企事业单位、城镇居民小区、学生公寓、旧楼电表改造、高层建筑等用电计量及控制的理想产品。
该表不联网时也可以通过射频卡实现预付费功能,本产品采用高频射频卡(Ml卡)作为数据传输的纽带,M1卡具有无触点、防攻击、容量大、加密性好、数据传输稳定、使用寿命长等优点,本产品可以通过内置读卡模块在表上实现预刷卡付费功能(需定购带内置刷卡功能),也可以通过外置刷卡器实现刷卡预付费功能(需要订购外置刷卡器),用户购电后不必到电表刷卡。
二、基础功能:
体积小、功耗低、精度高。
本电能表具有逻辑防潜动电路。
有功电能计量,长期不工作不需校验,具有防窃电功能。
LCD(大液晶)显示,正常工作时液晶屏显示剩余电量。
采用大功率磁保持继电器,长时间工作不会损坏,自身功耗低,可靠性和稳定性高。
联网抄表功能:带有485接口,可随时抄收各表的用电情况,便于管理部门统计月度用电量。
联网充值功能:当用户需要充值时,物业管理部门只需要通过售电软件输入购电量通过485线将电量传送到电表上,不需要用户再拿着卡到电表上刷卡。
联网通、断电控制功能:通过485网络,物业管理部门足不出户便可控制用户电表通、断电, 电表内的数据不会丢失。
具有预付费功能,欠费断电,缴费形式多样。联网控制和IC卡售电可同时兼备,用户可以选择用联网售电,也可以选择用卡进行售电。
过载保护(限流)功能(需定制):当用户负载超过允用最大负载时,该户自动断电保护。
最大可同时计量与检测39户单相或13户三相及以下单三相任意组合。
计量电路与通讯、显示电路采用双CPU结构,一个CPU主管计量,一个CPU主管通讯、显示和指示,快速通讯时不影响计量。
根据用户要求可制作外置刷卡型、内置刷卡型、联网远控型。
数据安全:电表各种参数采用加密法,保证数据安全。
三、扩展功能:
低电量短信提示:对接短信平台,无硬件,可设置报警量,一键全发,及时提示用户充值。
移动端手机支付:微信小程序充值。
微信推送:软件微信公众号推送,可推送低电量预警,物业也可发送天气等其他信息。
一卡通平台对接:标准协议定制,MBUS\485\645等标准协议对接接口。
单三相模式切换:软件更改单三相设置,无需更改硬件。
四、显示功能介绍
本产品采用LCD液晶显示,循环显示产品版本号、表地址、总出线数、三相户数、每一户电量(最多39户)。
显示用户电量时,第一排数字显示户号(或线号),第二排数字显示剩余电量(或累计电量)。
五、规格和主要技术参数
1.本产品符合产品符合GB/T17215.321-2021、GB/T18460.3-2001、JJG1099-2014的全部技术要求。
2.准确度等级:B级。
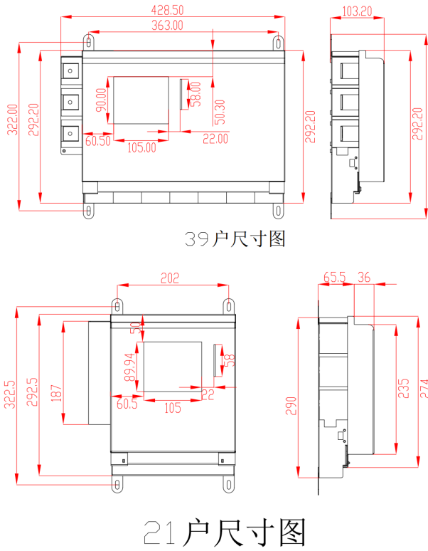
3.本产品有1-21户和22-39户两种壳体。
4.产品规格

5.基本误差

六、外形及尺寸

七、接线图

八、注意事项及简单故障排除
1.用户的电卡第一次购电后,应严格按照一表一卡对应。
2.电卡要妥善保管,切忌与强磁性物质放在一块,并注意保持电卡表面的清洁。
3.485联网线建议采用RVVP2×1.0双绞屏蔽线,表与管理系统之间的最远距离为1000米。
4.所购电量未用完出现断电,应先检查电表的出线是否有电压,如果有电压则应检查其它开关、线路。如果电表的出线无电压,则需检查是否为欠费,如欠费需充值后才能继续供电。
九、安装方式
1.电能表底座上、下端各有2个挂钩螺钉孔,可用螺钉固定,安装表的底板应固定在坚固耐火的墙上,建议安装高度为1.8米左右,空气中无腐蚀性气体。
2.电能表应按照接线图进行接线,最好用铜线或铜接线头接入。
十、运输与存储
1.电表的运输和拆封不应受到剧烈冲击,并根据ZBY00382/84《仪器仪表包装技术条件》规定运输和存储。
2.电表应存储在原包装箱内,存储的环境温度为-25℃~70℃,相对湿度不超过85%,空气中无腐蚀性气体。
十一、质量保证
电表在出厂两年内,在用户遵守本说明书规定要求下使用,并且铅封完整,如果出现质量问题,本公司免费维修或更换。
本公司拥有修订本说明书的权利,如有修改恕不另行通知。
RS485联网通讯布线说明
网络构建:
电表提供RS485通讯接口,用专用通讯双绞线( 线路型号:RVVP屏蔽双绞 线径:0.75、1.0)将电表连接组网,通过上位机,实现电表的参数抄取和控制。
组建RS485通讯网络时,一般采用手拉手串联方式。
